< >

First Floor Commercial Space | DA Approved Restaurant/Bar | Iconic Corner Position

113-115 Regent Street Redfern

For Lease Price on Application

THE X FACTORS ARE:

/ DA approved for restaurant / bar use
/ Prominent corner position with dual street presence
/ Character-filled building with strong street identity


X MARKS THE SPOT

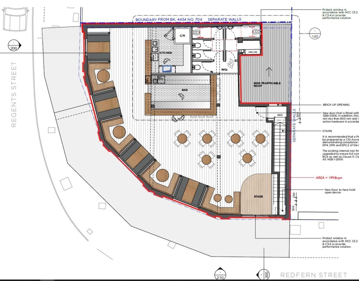
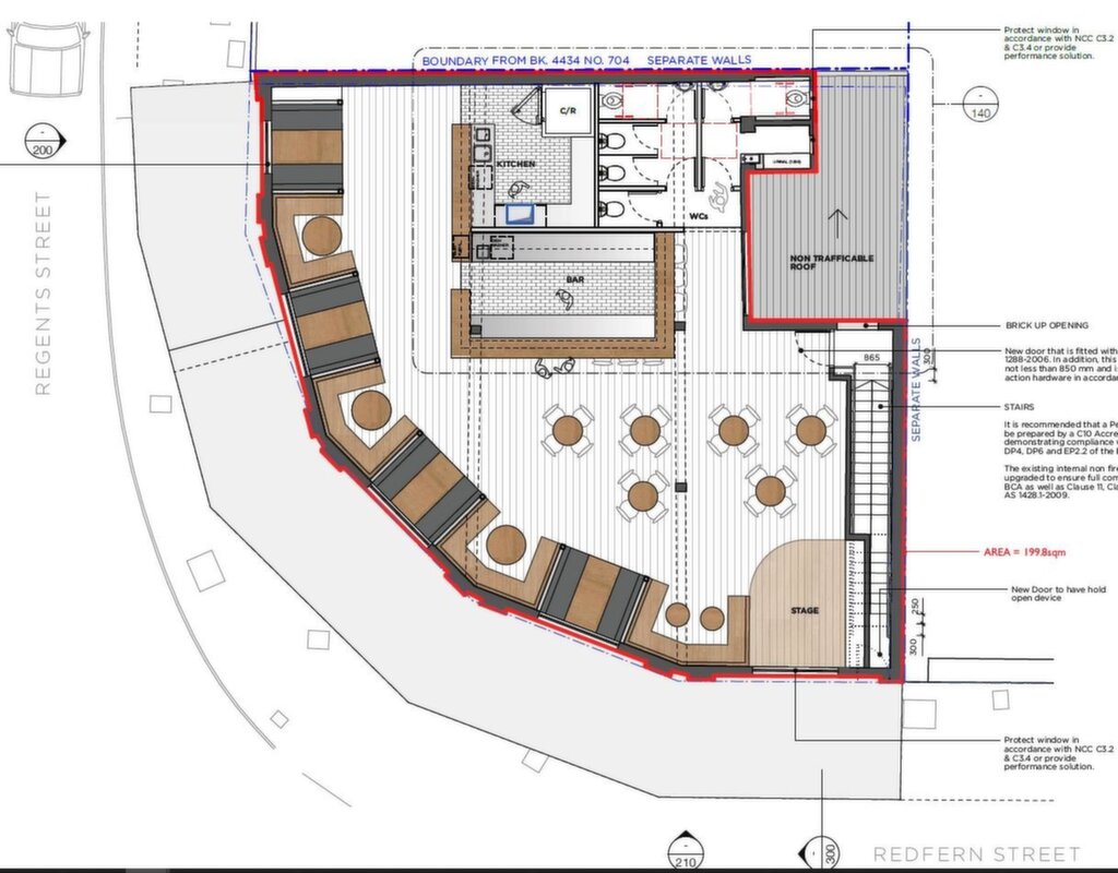
X Commercial is proud to offer to the market a prime commercial/retail opportunity in one of Sydney's most vibrant neighborhoods. This versatile space offers a generous floor area of approx. 200m2 - perfect for a variety of business ventures. With its strategic location on a busy street, you will benefit from high foot traffic and excellent visibility, ensuring your business stands out.


THE OPPORTUNITY

Positioned above a well-known corner building in the heart of Redfern, this unique first-floor commercial space offers a rare opportunity to secure a DA-approved restaurant/bar in one of Sydney's most tightly held hospitality precincts. With excellent exposure to both Regent and Redfern Streets, the property benefits from strong foot traffic, vibrant surrounding amenity, and a rapidly evolving local dining and nightlife scene.


THE KEY X FACTORS

/ Flexible open-plan layout suitable for hospitality operators
/ Located within a thriving mixed-use precinct
/ Surrounded by popular cafes, bars, and residential density
/ Excellent proximity to Redfern Station and major arterial roads


CONTACT AGENTS:

For more information or to organise an inspection, please contact the exclusive agent.

For Lease

Price Guide

Rent: Price on Application

Property Type

Retail

Floor area approx

199sqm

Inspection Details

Please contact David Kim to arrange an appointment.

Share This Property

×
< >
×
Property Enquiry