< >

Investment Sale in the heart of St Peters Industrial Precinct

3/2a Burrows Road St Peters

For Sale Asking: $3,250,000
2  

X Commercial is proud to bring Unit 3/2A Burrows Road, St Peters to the market for sale - A securely leased industrial investment located in the core of St Peters' highly regarded industrial precinct, with huge upside in the rents in the medium and long term.

The property offers investors an opportunity to acquire a well-configured, income-producing asset suited to a wide range of food-based users and businesses. Purpose-built food facilities of this nature are exceptionally rare and, should the tenant vacate at the expiry of the lease or option in eight years' time, the property is expected to re-lease quickly.

The property is currently under-rented relative to market levels. An investor will benefit from a significant rental uplift opportunity at lease review in three years.

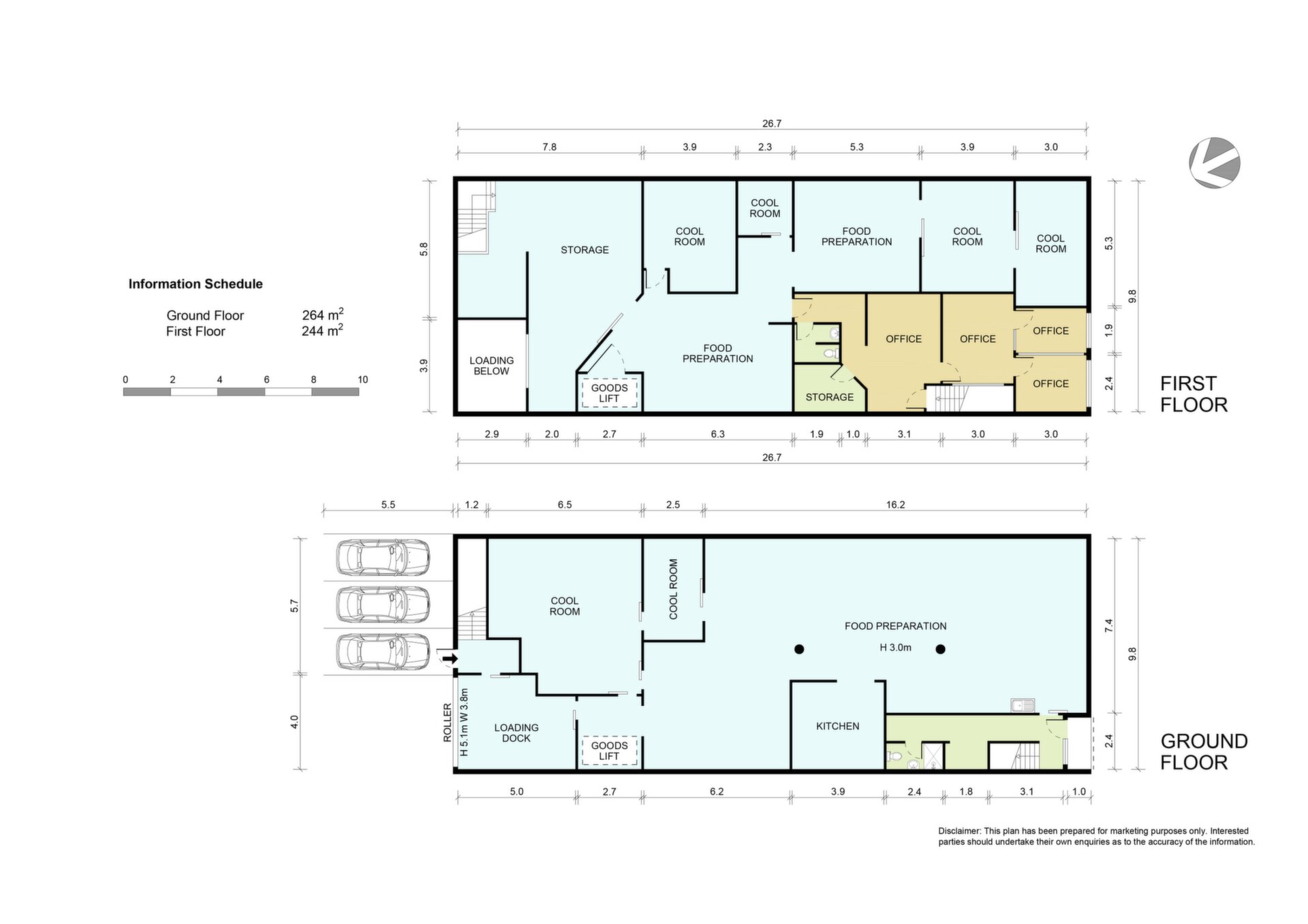
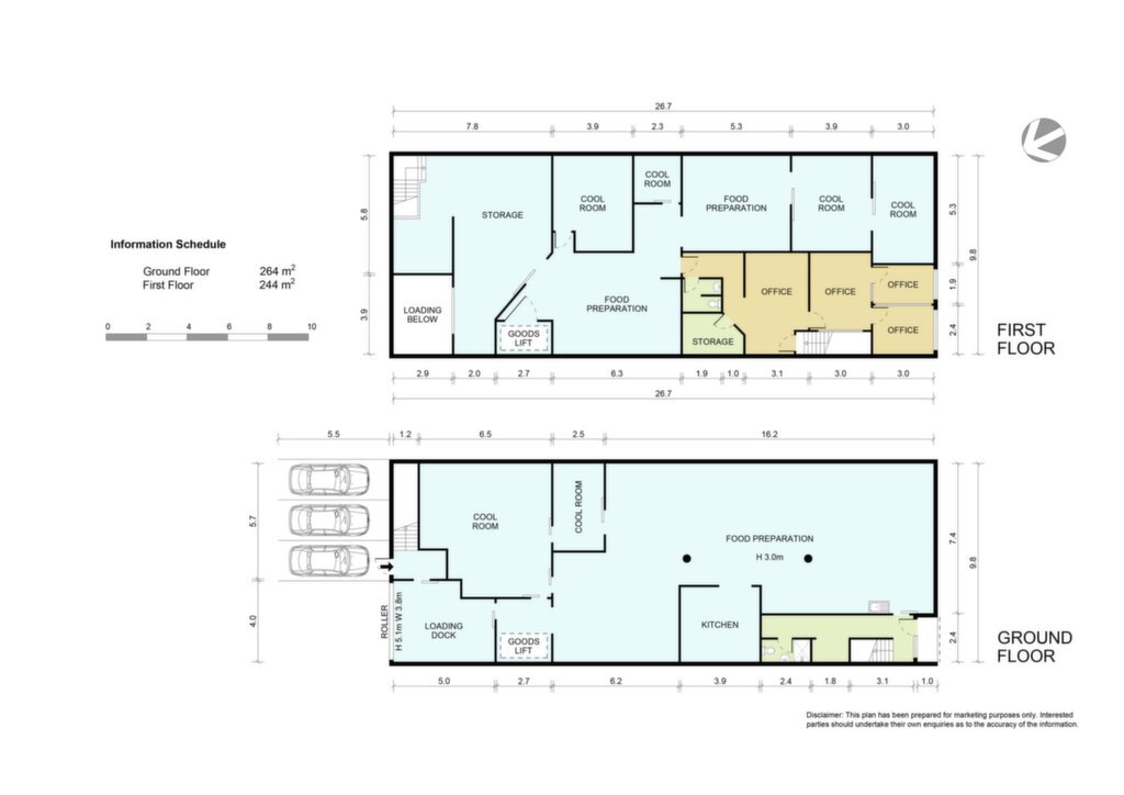
The property comprises a total building area of approximately 508m²* arranged over two levels, including approximately 50m² of office accommodation. Unlike conventional industrial strata units that feature a simple warehouse-and-office split, the building is predominantly configured with extensive food preparation areas across both levels, making it appealing to specialised food and cold-storage operators.

The ground floor incorporates an open operational area fitted with a newly installed air-conditioning system, enhancing functionality and staff comfort. This level is further supported by a newly installed grease trap with an epoxy base, providing compliant and durable infrastructure suited to intensive food use.

Cool rooms and freezer facilities are located on both the ground and first floors, allowing efficient product handling and distribution throughout the building while maximising operational functionality. The first floor also incorporates air-conditioned office accommodation, providing a balanced mix of administrative and working space, including a collaborative work area and three separate offices. The asset's specialised improvements, combined with its strategic inner-city location, underpin the strength of the existing tenancy and offer investors exposure to a tightly held industrial market with enduring tenant demand.

X FACTORS:
Ground Floor: 264m²* First Floor: 244m²* (DA approved) Total: 508m²* 5m* roller door height 6 cool rooms and freezers Zoning: E4: General Industrial Leased to October 2029 (3+9 months) with a further x5 year options(*Approx.)

For further details, please contact the below exclusive selling agents.

For Sale

Price Guide

Asking: $3,250,000

Property Type

Industrial/Warehouse

Facilities

2  

Floor area approx

508sqm

Inspection Details

Please contact Daniel O'Brien to arrange an appointment.

Share This Property

×
< >
×
Property Enquiry