< >

For Sale: 10 Hornsby St, Hornsby - Prime Industrial Warehouse

10 Hornsby Street Hornsby

For Sale CONTACT AGENT
4  

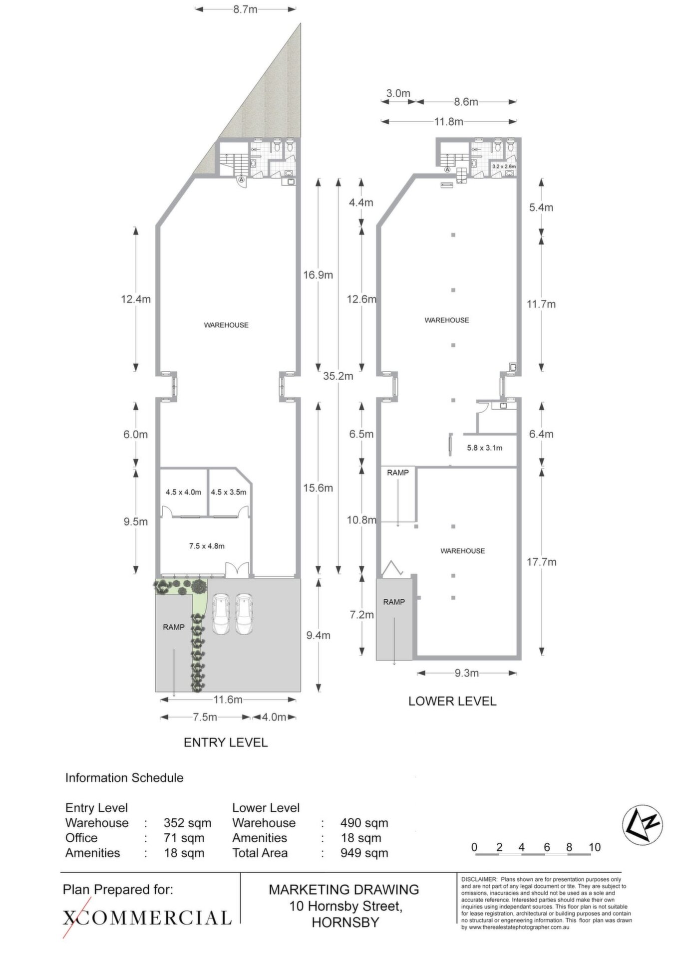
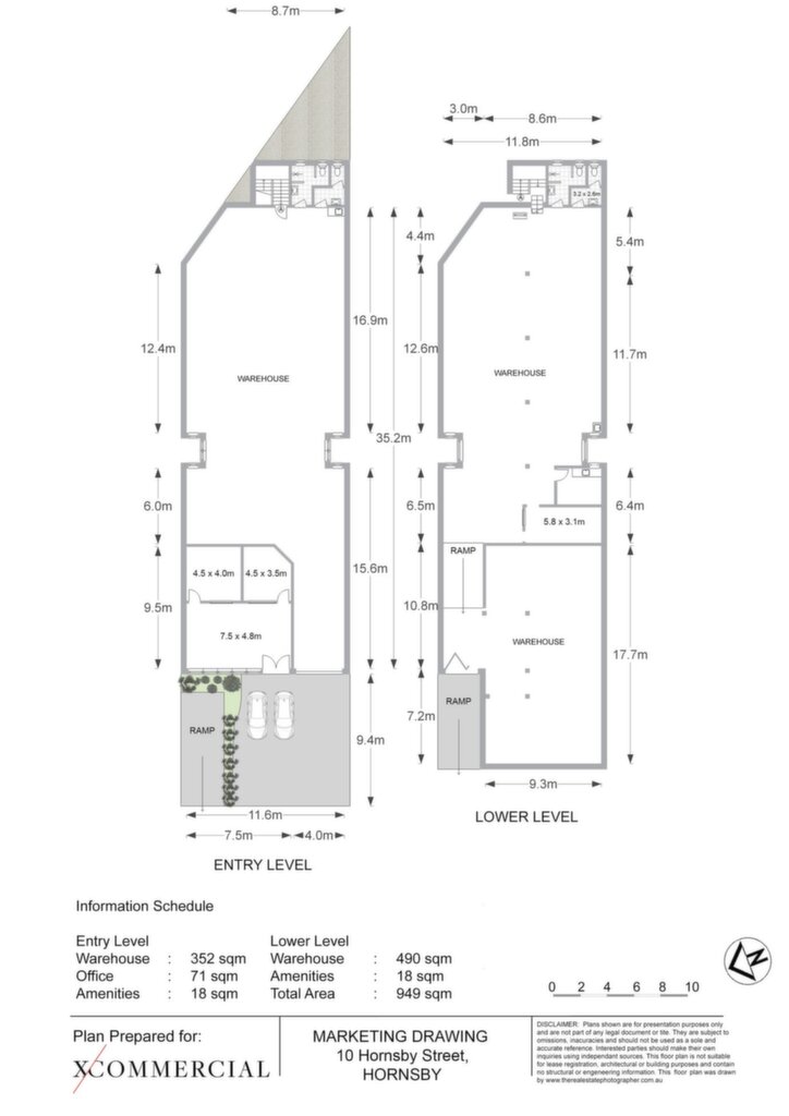
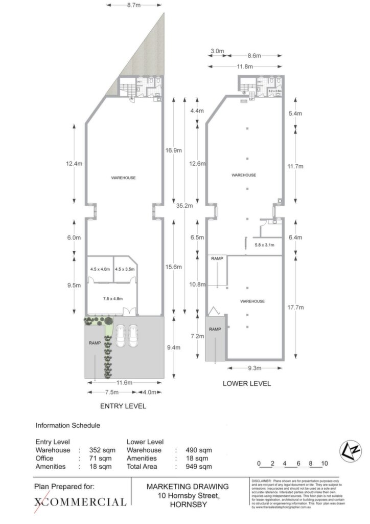
Located in the heart of Hornsby, this expansive two-level industrial warehouse offers an outstanding opportunity for businesses looking for versatile space with excellent access and functionality.

Key Features:

/ Two Levels of Space: A generous 949m² total area, providing ample room for a variety of business uses.
/ High Clearance: 4.2m high clearance on both levels, ensuring flexibility for large-scale operations and storage.
/ Vehicle Access to Both Levels: Convenient and efficient vehicle access to each level, ideal for easy loading and unloading.
/ Strategic Location: Positioned in a highly sought-after industrial precinct, offering proximity to major transport routes and amenities.

This property is priced to sell at $3.8 million, offering exceptional value for owner occupiers and businesses seeking to capitalize on the demand for industrial space in the Northern Sydney metropolitan area.

Contact us today to arrange an inspection and secure this prime industrial warehouse for your business!

For Sale

Price Guide

CONTACT AGENT

Property Type

Industrial/Warehouse

Facilities

4  

Land area approx

630sqm

Floor area approx

949sqm

Inspection Details

Please contact Will Catherwood to arrange an appointment.

Share This Property

×
< >
×
Property Enquiry