< >

Two-Level Industrial HQ in the Heart of Marrickville

48a-54 Chapel Street Marrickville

Sold
12  

X Commercial is pleased to present the opportunity to acquire this versatile, freestanding industrial facility to acquire in one of Sydney's most in-demand Inner West precincts.

In preparing the building for sale, the asset has recently undergone an extensive and comprehensive refurbishment to an incredible standard, this building needs nothing done to it and is perfect to move straight into or commence leasing out to a high-quality tenant.

Positioned on the southern side of Chapel Street, between Victoria Road and Fitzroy Street, this dual-level building is ideal for light manufacturing, production, or creative industrial users looking to capitalise on a central Marrickville location.

X FACTORS:
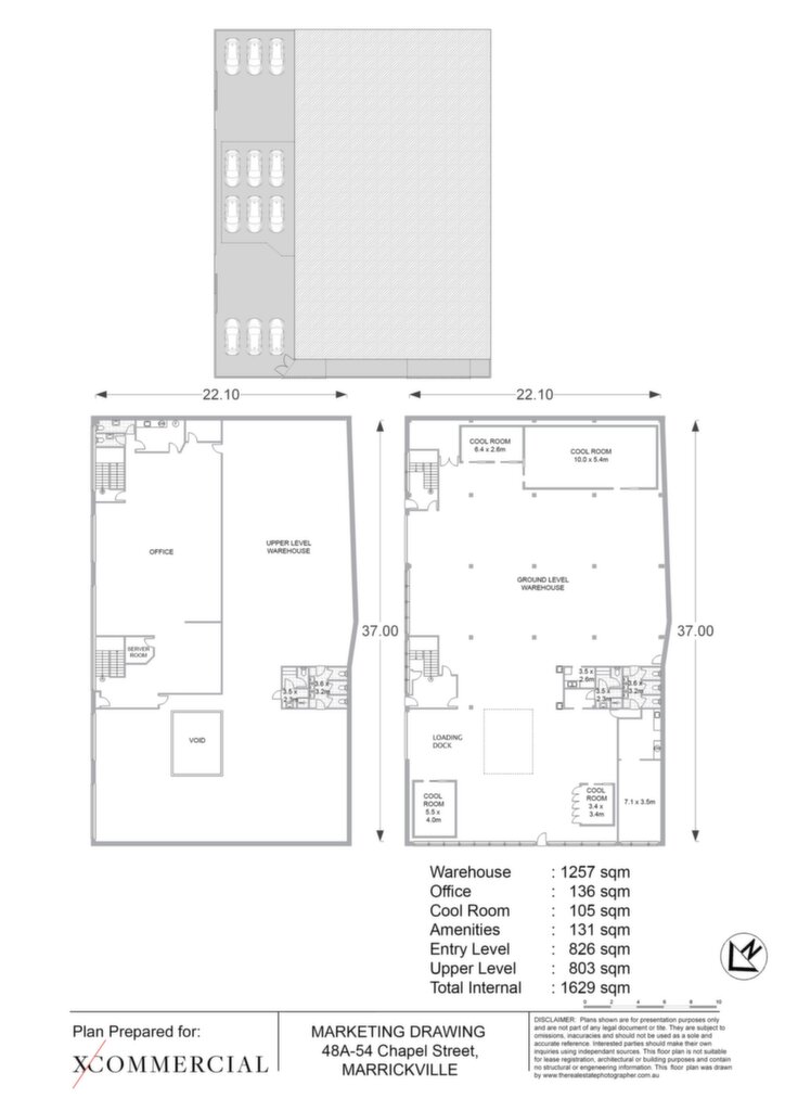
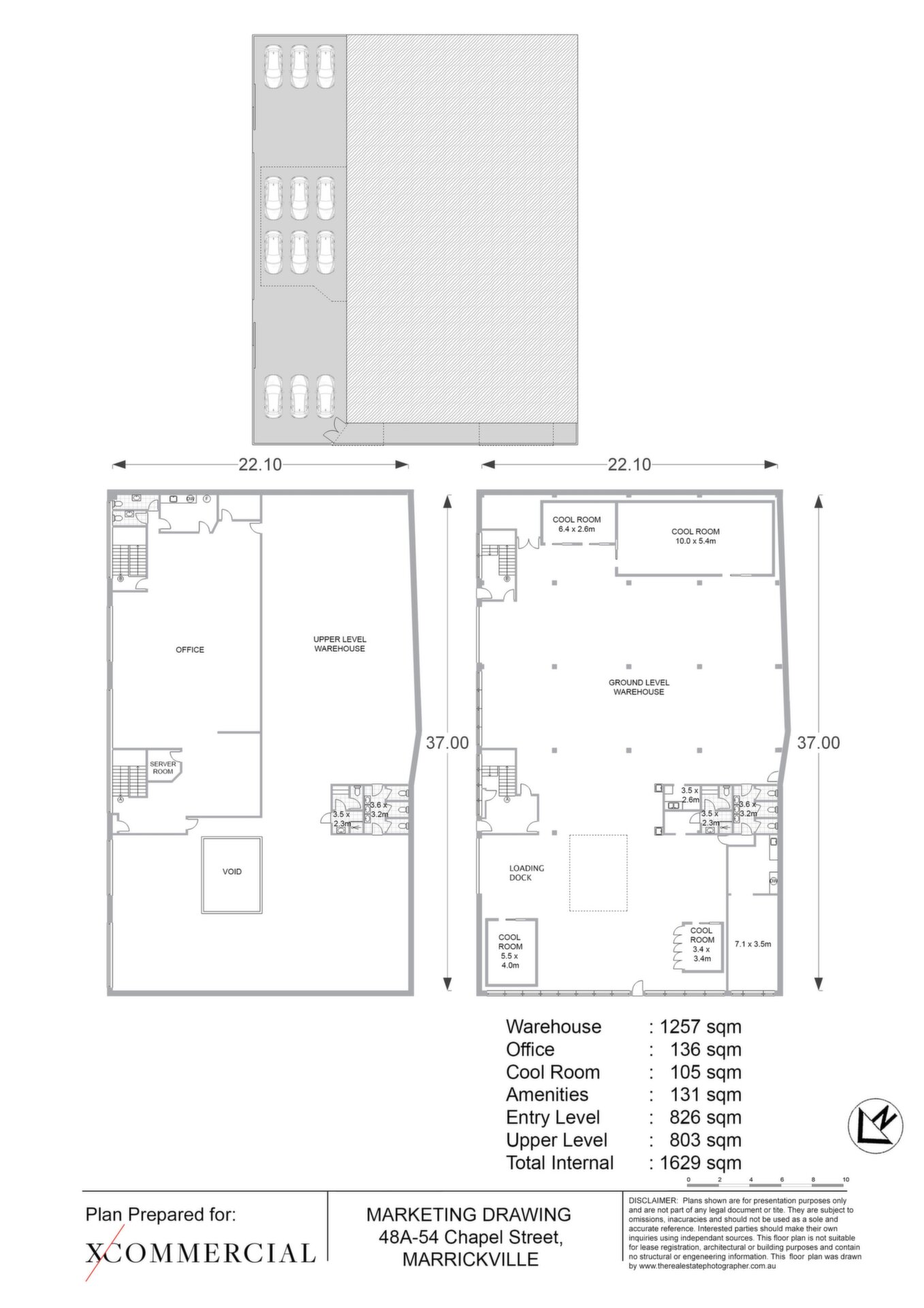
1,629sqm* total building area across two levels - Ground Floor 826sqm & First Floor 803sqm 1,206sqm* land size Zoning E4 General Industrial Rare two-level freestanding industrial facility Dual loading docks with roller shutter access 3.2m - 3.7m internal height clearances 39.6kw Solar System - reduce your operational costs Air-conditioned office component + staff amenities on both levels 3-phase power Wide 39m* frontage with secure entry gates Excellent, secure and gated onsite parking for 12 cars Completely refurbished to an incredible standard, ready to occupy or secure a tenant.(*Approx.)

Located in the thriving Marrickville industrial precinct, just moments to key arterials, Sydenham Train and Metro Station, and the vibrant inner west café and brewery scene.

For further details, please contact the below exclusive selling agents.

Daniel O'Brien - 0404 860 747
Matthew Babbage - 0472 548 682

Sold

Price Guide

Property Type

Industrial/Warehouse

Facilities

12  

Land area approx

1,206sqm

Floor area approx

1,629sqm

Share This Property

×
< >
×
×
Property Enquiry