< >

Prime Industrial Unit with High Clearance Warehouse & Easy Access

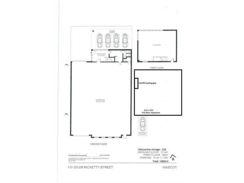
10/20-28 Ricketty Street Mascot

For Lease Contact Agent
5  

X Commercial, together with RWC Industrial City South are pleased to present 10/20-28 Ricketty Street, Mascot to market for lease. This modern single-level industrial estate offers exceptional convenience and accessibility. Whether you're looking to be close to key transport hubs or needing efficient operational flow, this unit ticks all the boxes.

Key Highlights:
Total NLA of 688sqm* Air-conditioned first-level office Impressive warehouse height of 7.5m* Dual container-height roller doors Convenient dual street access (Ricketty Street & Ossary Street) 5 dedicated car spaces Zoning: E3 Productivity Support Boutique & spacious complex of only 11 Efficient container loading/unloading Suited to take 20-40 ft containers Modern bathrooms & kitchen facilities
Strategically located to capitalize on all the major transport links that Sydney has to offer. Just a short drive to Sydney Airport, Mascot Train Station, and the WestConnex, your business will be perfectly positioned to access major highways, the city, and key freight routes.

For further information or to arrange an inspection, please contact the exclusive leasing agents.

X Commercial
Charlie McKenzie - 0416 833 118

RWC Industrial City South
Marcus Schraag - 0431 038 291

For Lease

Price Guide

Rent: Contact Agent

Property Type

Industrial/Warehouse

Facilities

5  

Floor area approx

688sqm

Inspection Details

Please contact Charlie McKenzie to arrange an appointment.

Share This Property

×
Property Enquiry