< >

418APEX - 465sqm Fully Fitted High End Turn Key

418A Elizabeth Street Surry Hills

For Lease Price on Application

INTRODUCING A STUNNING TRANSFORMATION THAT'S REDEFINED THE WORKSPACE EXPERIENCE

418Apex has been transformed into a state-of-the-art workplace designed to empower business and employee wellbeing.

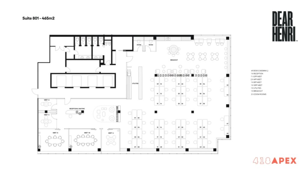
AVAILABLITY - Suite 801 - 465sqm
Fully fitted high end turn key spec fit out
49 Desks 5 Meeting Rooms 2 Zoom Rooms Large Breakout with Internal Kitchen
SPACE TO GROW
418Apex's prime location, large tenancies, high ceilings, tall windows, and sun-drenched interiors provide an alluring, multi-functional foundation to facilitate and foster social and professional interactions, while also providing a welcoming home in one of Sydney's most exciting and vibrant urban pockets. 418Apex has been fully upgraded to provide a high-tech and fully-equipped building with vibrant aesthetics and an inviting vibe. Reimagined as a space to help businesses succeed in today's fast-paced world, it's designed to inspire people to socialize, create, work, and play.

BUILDING FOR THE CUTTING EDGE
Completed in 2024, the upgrade of 418Apex has pushed the boundaries of what makes a workplace great. With community and wellbeing at the forefront, this redesigned and refreshed building is perfectly curated for a modern way of working.

SUSTAINABLE BY DESIGN
With sustainability top of mind, measures have been implemented throughout the building to minimize environmental impact, improve indoor air quality, and increase energy efficiency.

FEATURES

EXCLUSIVE ROOFTOP TERRACE 305 sqm of rooftop space with exercise and sun lawn, meditation dome, barbecue area and kitchen, ping pong table, and presentation & event space.

END OF TRIP Showers, lockers, bike storage, and more.

ADAPTABILITY TO SUIT YOUR NEEDS Multiple tenancy sizes for flexibility.

EXCEPTIONAL FEATURES Great location, unobstructed views, high ceilings, sun-drenched floors, and vistas of Surry Hills.

SUSTAINABLE DESIGN EV charging, economy cycle, and more.

Visit us at 418Apex.com.au

For Lease

Price Guide

Rent: Price on Application

Property Type

Office(s)

Floor area approx

465sqm

Inspection Details

Please contact Nelson Ferreira to arrange an appointment.

Share This Property

×
Property Enquiry